Vakmans Vastgoed
Oudstrijderslaan 17 9600 Ronse
E.fabienne@vakmansvastgoed.be

KIJK DROOM KIES

Huis voor € 371.884

Wodecqstraat 64-80, 9600 Ronse Bekijk op kaart
Ref: Wodecq woning 7

Delen

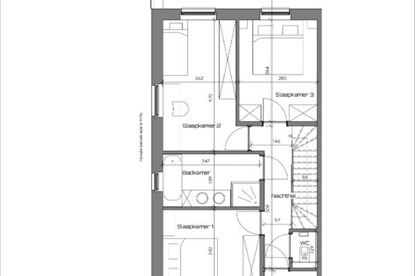
3 slaapkamers
1 badkamer
139 m² woonopp.
554 m² grondopp.

Maak een afspraak met Fabienne 0475/34.00.40 en kom langs bij ons op kantoor om alle mogelijkheden en prijzen te bespreken. 
Wij helpen u graag verder in uw zoektocht naar een nieuwe woonst. 

Naam
Fabienne Vandebuerie
GSM
E-mail

Prijs
€ 371.884
Totale prijs
€ 359.884,00

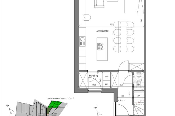
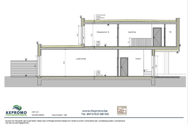
Gelijkvloers

Badkamer
Bureau
Eetkamer
Keuken
Parkeerplaats
Provisiekamer
3x Slaapkamer
Terras
2x Toilet
Tuin
Wasplaats
Woonkamer

E peil
30
K peil
28

Totale opp. grond
554 m²
Bewoonbare opp.
139 m²

Aardgas
Ja
Distributie
Ja
Elektriciteit
Ja
Internet
Ja
Regenwater
Ja
Riolering
Ja
Septische put
Ja
Stadswater
Ja
Vloerverwarming
Ja
Zonnepanelen
Ja

Beglazing
Dubbele
Raamwerk
PVC
Verwarming
Aardgas

Bebouwing
Halfopen
Algemene staat
Luxe afwerking
Elektriciteitscertificaat
Ja, Conform

Overstromingsgevoeligheid
Niet overstromingsgevoelig
Afgebakende zone
Niet van toepassing
Stedenbouwkundige bestemming
Niet ingegeven
Dagvaarding voor stedenbouwkundige overtreding
Geen rechterlijke herstelmaatregel of bestuurlijke maatregel opgelegd
Bouwvergunning
Bouw vergund
Verkavelingsvergunning
Ja
Voorkooprecht
Neen
Beschermd erfgoed
Neen
Renovatieplicht
Niet ingegeven